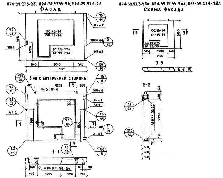
НР4-32.27.3-2бл

Чертеж изделия:
Чертеж НР4-32.27.3-2бл
Характеристики изделия:
ПараметрЗначение
Длина3195 мм
Ширина300 мм
Высота2650 мм
Масса2290 кг
Нормативный документСерия 1.132-1

НР4-32.27.3-2бл  Наружная стеновая панель рядовая по Серии 1.132-1.