НР1-30.27.3-1бл
Характеристики изделия:
Параметр | Значение |
---|---|
Длина | 2990 мм |
Ширина | 300 мм |
Высота | 2650 мм |
Масса | 2260 кг |
Нормативный документ | Серия 1.132-1 |
Цена:
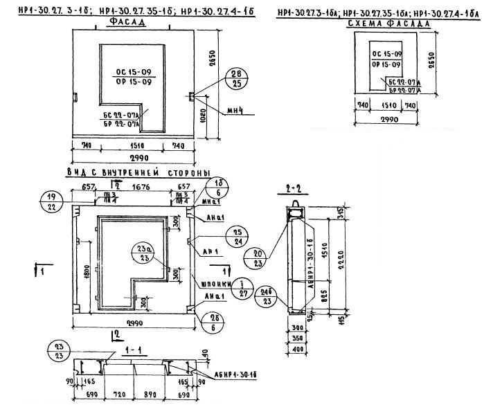
Рассчитать стоимостьНР1-30.27.3-1бл Наружная стеновая панель рядовая по Серии 1.132-1.
Параметр | Значение |
---|---|
Длина | 2990 мм |
Ширина | 300 мм |
Высота | 2650 мм |
Масса | 2260 кг |
Нормативный документ | Серия 1.132-1 |
НР1-30.27.3-1бл Наружная стеновая панель рядовая по Серии 1.132-1.